产品中心
致力于步进电机及驱动控制生产研发
1.概述
CWD3M683是新一代高性能数字式三相步进电机驱动器,采用32位的DSP处理器,内部集成了抗共振、低噪音、微步细分、低温升技术大幅度提高步进电机的性能,具有噪音低、振动小、温升低和高速力矩大等特点。驱动器内部采用在线自适应PID技术,无需人工调整就能自动针对不同电机生成最优参数,使电机运行性能达到最佳。
驱动器电压为直流20V-60V,适合电流在8.3A以下各种型号的三相混合式步进电机。其微步细分有16种(最大细分数为40000步/转);最大工作电流范围为3.2A-8.3A,输出电流共有8档;具有自动半流、自检、过压、欠压和过流等保护功能。
2.特点
•高性能、低价格
•内置微步细分
•停止时自动半流
•光电隔离信号输入/输出
•脉冲响应频率最高可达200KHz
•低温升、低振动
•在线自适应PID技术
3.主要应用领域
适合各种大型自动化设备和仪器。例如:打标机、切割机、包装机、绘图仪、雕刻机、数控机床等。在用户期望低成本、低振动、低噪音、高精度、高速度的设备中效果特佳。
4.电气参数

1.电流设定

2.半流设定
用户可通过SW4来设定驱动器的半流功能。OFF表示静态电流设为动态电流的一半,脉冲停止后0.5秒电流自动减至一半;ON表示静态电流与动态电流相同。一般用户应将SW4设成OFF,以减少电机和驱动的发热,提高可靠性。
3.细分设定

1.控制信号接口

输入信号电压幅值大于5V,则输入端需要串联限流电阻(参考控制信号接口电路图)。
2.强电接口

3.控制信号接口电路
信号接口详细说明:CWD3M683型步进电机驱动器内部的接口电路都采用光耦信号隔离,图中R为外接限流电阻。接法为差分接法,抗干扰性能良好。



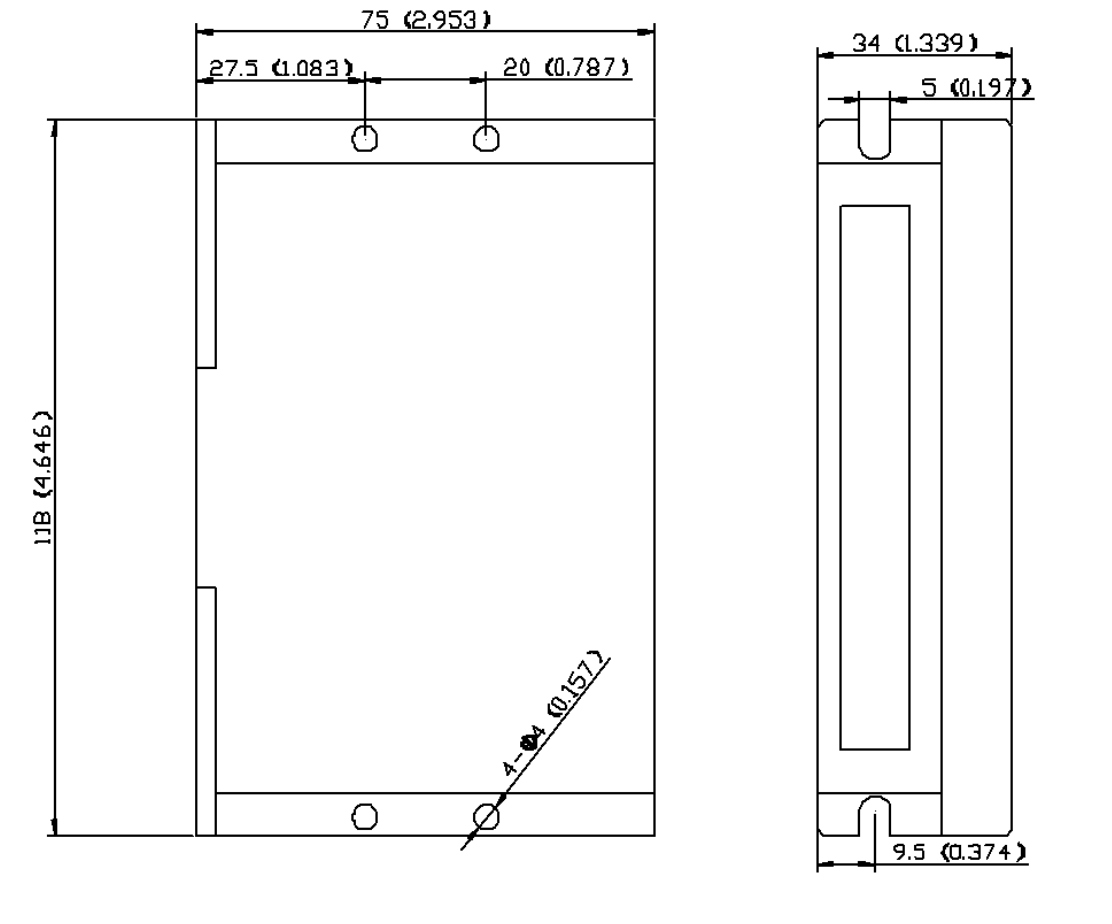
驱动器外形尺寸为:118×75×34mm,具体见外型尺寸图。注意留出大于10CM的空间以利于散热。安装时应使其紧贴在金属机柜上以利于散热。

在线留言
常州创伟电机电器有限公司 网站建设:zzw | 苏ICP备2021012447号-1